Łódź, Polesie, Karolew, ok. Al. Włókniarzy

Lokal na wynajem

Opis nieruchomości


LOKAL na I PIĘTRZE  w  wolnostojącym 2 piętrowym budynku  przeznaczonym na biura , usługi 


BUDYNEK na osiedlu mieszkaniowym KAROLEW, blisko Dworca Kaliskiego i Al. Włókniarzy

DO WYNAJĘCIA

PARTER - 100 m - czynsz najmu 3500 zł + VAT, plus opłaty eksploatacyjne,

kaucja 5000 zł  

I PIĘTRO - 100 m - czynsz najmu 3000 zł + VAT, plus opłaty eksploatacyjne, 

kaucja 4500 zł  

II PIĘTRO - 100 m - czynsz najmu 3000 zł + VAT, plus opłaty eksploatacyjne,
kaucja 4500 zł  


Preferowany najem  CAŁEGO BUDYNKU - trzy kondygnacje: parter, I piętro i II piętro na każdej kondygnacji po ok.100 m, razem 300 m

- Czynsz najmu za cały budynek 9000 z + VAT , plus opłaty eksploatacyjne,

kaucja 14 000 zł  

Można też wynająć jedną lub dwie kondygnacje 


PARKING dla NAJEMCÓW - 1 miejsce na jedną kondygnację , 3 miejsca na cały budynek w cenie najmu

Możliwość parkowania wzdłuż ulicy przed lokalem/budynkiem bez opłat



- WOLNOSTOJĄCY budynek z parkingiem na osiedlu mieszkaniowym

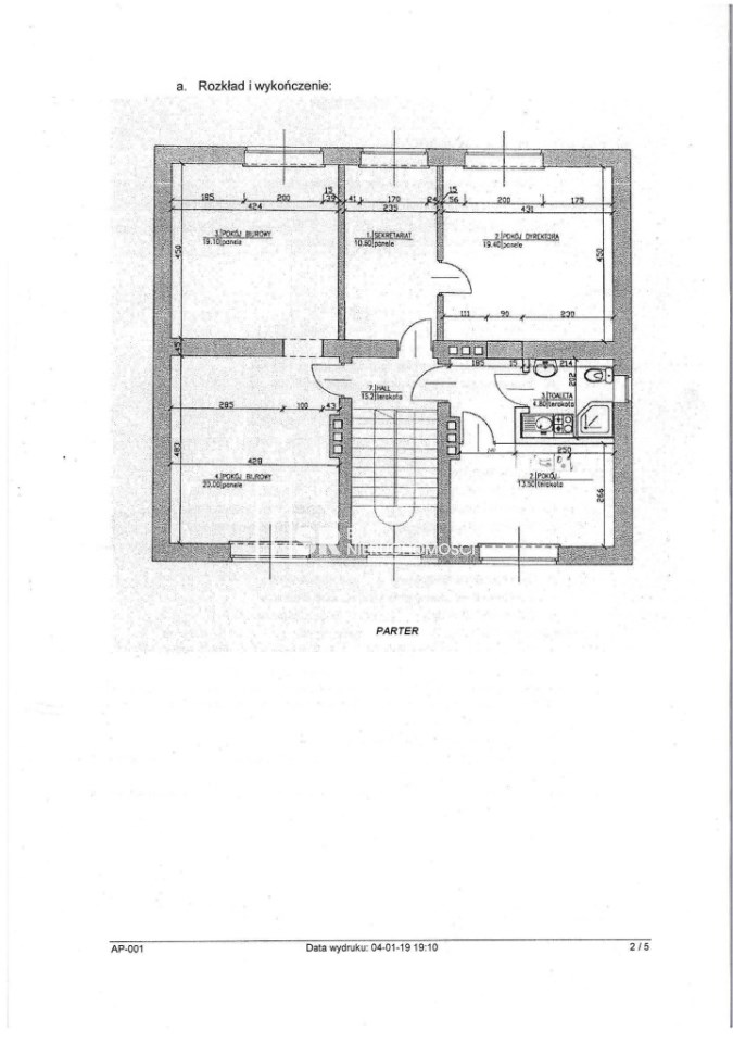
- ROZKŁAD POMIESZCZEŃ.

PARTER  -  103 m :  4 POKOJE, pomieszczenie socjalne - KUCHNIA, WC z prysznicem, hol i klata schodowa,


I PIĘTRO - 102,60 m  : 4 POKOJE, pomieszczenie socjalne - KUCHNIA, WC z prysznicem, hol i klata schodowa,


II PIĘTRO - 103,20 m :  sala konferencyjna,  2 pokoje, pomieszczenie socjalne - KUCHNIA, WC z prysznicem,

Wysokość pomieszczeń ok. 2,80 .

Wspólna klatka schodowa 

linie cyfrowe ISDN, alarm z monitoringiem.

PARKING, w ramach czynszu najmu 1 miejsce / jedną kondygnację, dostępny obok parking strzeżony


Możliwość montażu tablicy reklamowej na ogrodzeniu i w oknach lokali

WYKOŃCZENIA i MEDIA :

- MEDIA MIEJSKIE - Elektryczność, woda, kanalizacja, CO  i ciepła woda - SIEĆ MIEJSKA - własny węzeł     cieplny
- OKNA PCV
- PODŁOGI - WYKŁADZINY i TERAKOTA


- ŚCIANY GŁADZIE GIPSOWE
- ŁAZIENKI I KUCHNIE  - glazury i terkoty
- KLATKA SCHODOWA - terakota, barierki metalowe 

- LINIE CYFROWE ISDN,
- ALARM z MONITORINGIEM



Bardzo blisko do tramwaju i autobusu.

300 m - BUDYNEK - DOM - biurowo - usługowy na ogrodzonej działce, wewnątrz osiedla mieszkaniowego, parking na Najemców, linie cyfrowe ISDN, alarm z monitoringiem.

DOBRY STANDARD. Blisko Dworca Kaliskiego i Al. Włókniarzy


PLANY W BIURZE.

- UWAGA!   Oferty prezentowane na naszych stronach nie stanowią oferty w rozumieniu Kodeksu Cywilnego, a są jedynie zaproszeniem do rokowań. Podane dane mają charakter wyłącznie informacyjny i mogą odbiegać od stanu faktycznego. Opis obiektu został sporządzony na podstawie informacji przekazanych przez Oferującego. Oferta może być już nieaktualna. Prosimy o telefon.

Nota prawna

Opis oferty zawarty na stronie internetowej sporządzany jest na podstawie oględzin nieruchomości oraz informacji uzyskanych od właściciela, może podlegać aktualizacji i nie stanowi oferty określonej w art. 66 i następnych K.C.

Szczegóły oferty

Symbol oferty PRO-LW-11090
Powierzchnia 100,00 m²
Liczba pokoi 11
Piętro parter
Rodzaj budynku budynek wolnostojący
Kaucja zabezp. 4500
Standard
Opłaty wg liczników woda, prąd, CO
Liczba pięter w budynku 2
Stan lokalu odnowione
Okna PCV
Instalacje wymienione
Zagosp. działki zagospodarowana
Ukształtowanie działki płaska
Kształt działki prostokąt
Stan budynku do zamieszkania
Rodzaj lokalu jednopoziomowy
Woda ciepła - miejska
Dojazd asfalt
Otoczenie osiedle
Ogrzewanie miejskie
Własny parking tak
Położenie lokalu ulica osiedlowa
Podłogi wykładzina

Lokalizacja

Podobne oferty

lokal na wynajem - Łódź, Śródmieście, Deptak

lokal na wynajem

Łódź, Śródmieście, Deptak
  80,00 m2 43,75 zł/m2
nowa oferta
lokal na wynajem - Łódź, Polesie, Karolew, ok. Al. Włókniarzy

lokal na wynajem

Łódź, Polesie, Karolew, ok. Al. Włókniarzy
11 pokoi 100,00 m2 35,00 zł/m2

Napisz do nas

Proszę wypełnić to pole
Proszę wypełnić to pole
Proszę wypełnić to pole
Proszę wypełnić to pole
Trwa wysyłanie...

Ta strona wykorzystuje pliki cookies w celach statystycznych oraz w celu dostosowania naszych serwisów do indywidualnych potrzeb klientów. Zmiany ustawień dotyczących plików cookie można dokonać w dowolnej chwili modyfikując ustawienia przeglądarki. Korzystanie z tej strony bez zmian ustawień dotyczących cookies oznacza, że będą one zapisane w pamięci urządzenia.

rozumiem