Łódź, Śródmieście

Mieszkanie na wynajem

Opis nieruchomości

POLECAMY do wynajęcia Przestronne słoneczne M-2 w doskonałej lokalizacji przy ul. Anstadta.

Budynek oddalony od ulicy, oddzielony terenem zielonym (trawnik, drzewa, krzewy).
Wokół dużo zieleni, Park Helenów tuż obok.
Lokalizacja w zacisznym miejscu, a jednocześnie prawie w centrum miasta .

Bliskość wydziałów Uniwersytetu Łódzkiego i Uniwersytetu Medycznego i innych uczelni niepublicznych - to niewątpliwy atut dla studentów lub pracowników uczelni.
W pobliżu Teatr Muzyczny, biurowiec Green Horizon I (siedziba Infosysu), ośrodek zdrowia - szpital im. Rydygiera, szpital MSW. Biurowiec Sterlinga Business Center po sąsiedzku..
Kilka minut pieszo do Placu Wolności, Teatru Jaracza, Teatru Wielkiego i Nowego Centrum Łodzi (w tym Dworca Łódż Fabryczna, centrum kulturalnego w EC1, nowych biurowców - Skanska, Brama Miasta). Prosta droga do CH Manufaktura, ul. Piotrkowskiej oraz w drugą stronę CKD.
W pobliżu sklepy (np. Lidl, Netto, Rossmann, Biedronka), szkoły, placówki medyczne.
Świetna komunikacja miejska w ulicy Pomorskiej i Północnej.

Opłaty dla spółdz./admin.: 550,- zł;
Opłaty dodatkowe: energia, gaz, woda ciepła/zimna (220 zł);
Internet, telewizja (we własnym zakresie,);
Płatność: miesięczna; okres najmu: do uzgodnienia (minimum rok tj. 12 miesięcy);
Kaucja w wysokości dwumiesięcznych opłat.

Mieszkanie: wolne od 1-go stycznia 2026r.

POŁOŻENIE MIESZKANIA
Typ budynku: blok z cegły; Ilość pięter: 3 Rok budowy: ok. 1960; Rodzaj budulca: cegła
Mieszkanie: środkowe, rozkładowe ;
Otoczenie: osiedle mieszkaniowe, park;
Wystawa okien: wschód;

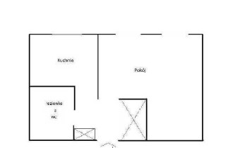
OPIS POMIESZCZEŃ
Pokoje: ok. 21 m kw.
Przedpokój ok. 3 m kw.
Kuchnia ok. 8 m kw.
Łazienka ok. 3 m kw.
Piwnica - tak;
Przedpokój: podłoga: parkiet; zabudowa: szafa wnękowa, pawlacz, szafki;
Pokój: podłogi: parkiet; okna: nowe PCV; Pokój z dużą wnęką;
Kuchnia: widna; glazura, zabudowa - szafki kuchenne; wyposażenie: lodówka (nowa), kuchenka gazowa, kuchenka mikrofalowa.
Łazienka: wc, glazura, terakota; kabina prysznicowa, pralka (nowa)

INSTALACJE
Elektryczność, gaz, kanalizacja, woda, ciepła woda miejska, licznik wody ciepłej i zimnej;

DODATKOWE INFORMACJE
Cicha lokalizacja przy niezbyt ruchliwej ulicy. Budynek dość daleko odsunięty od ulicy, odgrodzony dużą ilością zieleni.
Doskonała komunikacja miejska tramwajowa i autobusowa.

Mieszkanie dla jednej osoby.
W związku z zapytaniami - nie nadaje się dla rodziny trzyosobowej lub większej.

UWAGA:
Prezentowana oferta nie stanowi oferty w rozumieniu zapisów Kodeksu Cywilnego.
Dane o ofercie oparte są na dokumentach i informacjach uzyskanych od Oferującego. Biuro nie odpowiada za ewentualne rozbieżności ze stanem faktycznym.
Oferta może być w danym momencie nieaktualna

Nota prawna

Opis oferty zawarty na stronie internetowej sporządzany jest na podstawie oględzin nieruchomości oraz informacji uzyskanych od właściciela, może podlegać aktualizacji i nie stanowi oferty określonej w art. 66 i następnych K.C.

Szczegóły oferty

Symbol oferty VAR-MW-872
Powierzchnia 35,00 m²
Liczba pokoi 1
Piętro 1
Rodzaj budynku blok
Technologia budowlana cegła
Opłaty w czynszu woda, CO
Opłaty wg liczników woda, prąd, gaz
Liczba pięter w budynku 3
Stan lokalu do wprowadzenia
Typ kaucji dwumiesięczna
Mies. czynsz admin. 550 PLN
Okna nowe PCV
Instalacje ELEKTRYCZNA, WODNA, GAZOWA
Rok budowy 1957
Gaz tak - miejski
Woda tak - miejska
Dojazd asfalt
Otoczenie osiedle
Ogrzewanie miejskie
Umeblowanie pełne
Usytuowanie jednostronne
Drzwi antywłamaniowe tak
Klucze tak

Pomieszczenia

Powierzchnia pokoi 21 m2
Podłogi pokoi parkiet
Typ kuchni z zabudową kuchenną
Rodzaj kuchni oddzielna
Powierzchnia kuchni 8 m2
Podłoga kuchni PCV
Typ łazienki razem z wc
Liczba łazienek 1
Podłoga łazienki terakota
Wyposażenie łazienki natrysk
Liczba WC 1
Liczba przedpokoi 1
Podłoga przedpokoi parkiet

Lokalizacja

Podobne oferty

mieszkanie na wynajem - Łódź, Bałuty, Doły, WOJSKA POLSKIEGO/HARCERSKA

mieszkanie na wynajem

Łódź, Bałuty, Doły, WOJSKA POLSKIEGO/HARCERSKA
2 pokoje 33,00 m2 45,45 zł/m2

Napisz do nas

Proszę wypełnić to pole
Proszę wypełnić to pole
Proszę wypełnić to pole
Proszę wypełnić to pole
Trwa wysyłanie...

Ta strona wykorzystuje pliki cookies w celach statystycznych oraz w celu dostosowania naszych serwisów do indywidualnych potrzeb klientów. Zmiany ustawień dotyczących plików cookie można dokonać w dowolnej chwili modyfikując ustawienia przeglądarki. Korzystanie z tej strony bez zmian ustawień dotyczących cookies oznacza, że będą one zapisane w pamięci urządzenia.

rozumiem