Lubochnia, Tarnowska Wola

Dom na sprzedaż

Opis nieruchomości

Dom w stanie deweloperskim – po kompleksowej modernizacji
Na sprzedaż dom z 1980 r., który w 2015 roku przeszedł gruntowną przebudowę i modernizację technologiczną. Budynek łączy solidne mury z nowoczesnym standardem wykończenia (wnętrza przygotowane do finalnych prac wykończeniowych).
Standard techniczny:
  • Okna: Energooszczędne PCV, 3-szybowe (kolor antracyt).
  • Dach: Nowa blachodachówka, doskonała izolacja poddasza pianą PUR.
  • Ogrzewanie: Parter w całości wyposażony w ogrzewanie podłogowe (sufity podwieszane).
  • Media: Prąd, woda z sieci, szambo, światłowód.
  • Bezpieczeństwo: Gotowe instalacje pod alarm, kamery oraz oświetlenie zewnętrzne.
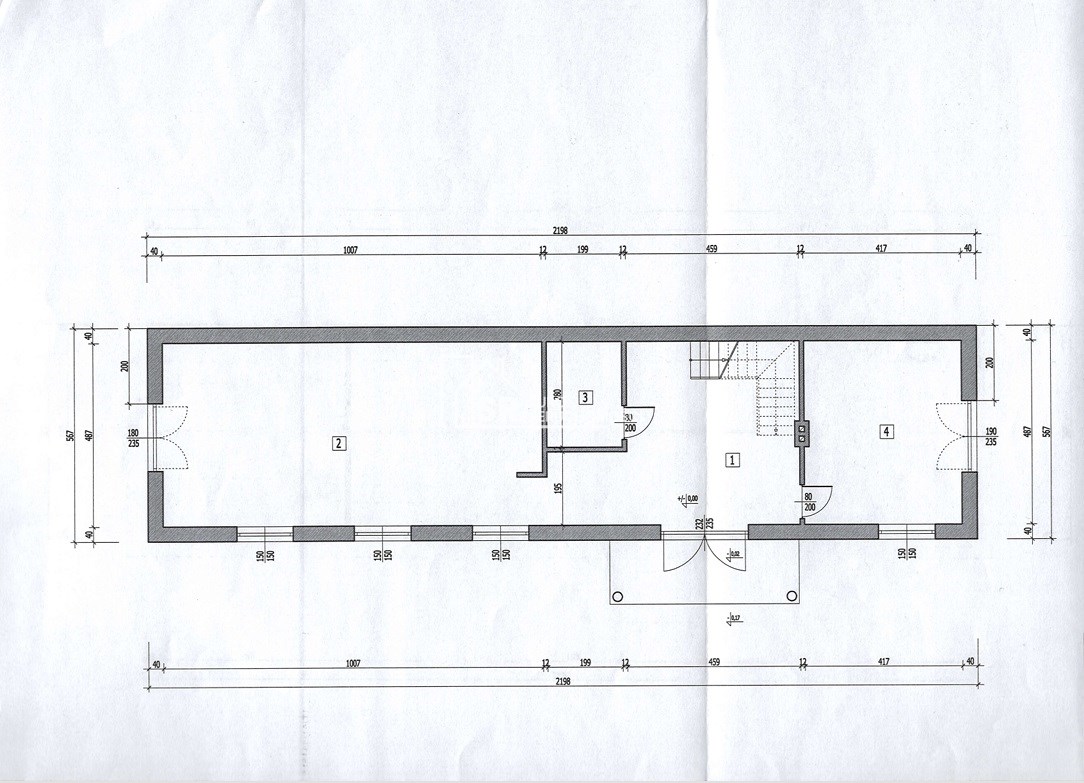
Układ pomieszczeń:
  • Parter (wys. 2,46 m): Otwarta strefa dzienna – salon z aneksem kuchennym (47 m²), ustawny pokój z wyjściem na taras (19 m²), łazienka oraz przedpokój. Dom częściowo podpiwniczony.
  • Poddasze: 3 przestronne sypialnie (21–23 m²), w tym jedna z wyjściem na balkon.
Budynki dodatkowe i działka:
  • Garaż: Potężny, wolnostojący obiekt dwustanowiskowy o pow. 70 m².
  • Budynek gospodarczy: 20 m², połączony instalacją grzewczą z domem (idealny pod kotłownię lub warsztat).
  • Teren: Ogrodzenie panelowe oraz siatka, brama wjazdowa ręczna.
Lokalizacja:
Spokojna, zielona okolica. Idealna logistyka: tuż obok przystanek komunikacji miejskiej oraz autobusu szkolnego.
Zapraszam na prezentację!

 

Nota prawna

Opis oferty zawarty na stronie internetowej sporządzany jest na podstawie oględzin nieruchomości oraz informacji uzyskanych od właściciela, może podlegać aktualizacji i nie stanowi oferty określonej w art. 66 i następnych K.C.

Szczegóły oferty

Symbol oferty KAW-DS-36606
Powierzchnia 180,00 m²
Powierzchnia użytkowa 160,00 m²
Powierzchnia działki 3 410 m²
Liczba pokoi 5
Rodzaj domu jednorodzinny
Technologia budowlana cegła max
Standard
Liczba pięter w budynku 1
Wymiary działki 27/143 m
Garaż 1
Stan prawny Własność
Okna PCV 3 szyby, ciepły montaż
Instalacje ELEKTRYCZNA
Balkon jest
Liczba balkonów 1
Liczba tarasów 1
Zagosp. działki częściowo zagospodarowana
Ukształtowanie działki płaska
Kształt działki prostokąt
Pokrycie dachu blachodachówka
Pozwolenie na użytkowanie w trakcie uzyskiwania
Stan budynku do wykończenia
Podpiwniczenie tak
Ogrodzenie działki ogrodzona
Rok budowy 2015
Gaz brak
Woda tak
Dojazd asfalt
Otoczenie działki zabudowane
Ogrzewanie podłogowe
Tarasy jest
Prąd jest
Kanalizacja szambo

Pomieszczenia

Powierzchnia pokoi 47/23/22/22/21 m2
Podłogi pokoi wylewka
Typ kuchni aneks kuchenny połączony z jadalnią i salonem
Rodzaj kuchni aneks kuchenny - połączony z salonem
Powierzchnia kuchni 47,6 m2
Podłoga kuchni wylewka
Liczba łazienek 1
Powierzchnia łazienki 5,6 m2
Podłoga łazienki wylewka
Liczba przedpokoi 1
Powierzchnia przedpokoi 22,5 m2
Podłoga przedpokoi wylewka

Lokalizacja

Kalkulator kredytowy

PLN
%
Wysokość raty

Kalkulator kosztów

PLN
PLN
PLN
PLN
PLN
PLN
%
PLN
Podatek od czynności cywilno-prawnych
Taksa notarialna (opłata notarialna)
VAT od taksy notarialnej (opłaty notarialnej)
Wniosek do WKW
VAT od wniosku do WKW
Prowizja agencji nieruchomości
VAT od prowizji agencji nieruchomości
Wypisy aktu notarialnego - około
RAZEM (cena + opłaty)

Uwaga: mogą wystąpić dodatkowe opłaty za założenie księgi wieczystej oraz ustanowienie hipoteki.

Napisz do nas

Proszę wypełnić to pole
Proszę wypełnić to pole
Proszę wypełnić to pole
Proszę wypełnić to pole
Trwa wysyłanie...

Ta strona wykorzystuje pliki cookies w celach statystycznych oraz w celu dostosowania naszych serwisów do indywidualnych potrzeb klientów. Zmiany ustawień dotyczących plików cookie można dokonać w dowolnej chwili modyfikując ustawienia przeglądarki. Korzystanie z tej strony bez zmian ustawień dotyczących cookies oznacza, że będą one zapisane w pamięci urządzenia.

rozumiem