Na sprzedaż wolnostojący dom jednorodzinny z 1994 roku, położony w spokojnej i zielonej okolicy, w sąsiedztwie lasu. Idealna propozycja dla osób ceniących ciszę, przestrzeń i prywatność, a jednocześnie wygodny dojazd do miasta (wjazd na autostradę A1 zaledwie 4 km – 6 minut). Działka o powierzchni 3376 m² ma kształt prostokąta i daje możliwość podziału. Teren porośnięty drzewami liściastymi i iglastymi, z zadbaną zielenią niską.
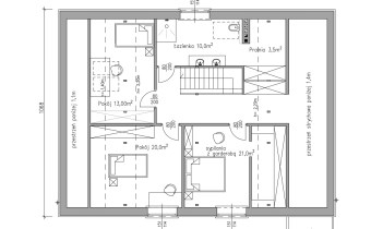
Powierzchnia użytkowa budynku: 198 m²
Powierzchnia zabudowy: 180 m²
Powierzchnia piwnic (z garażem): 110 m²
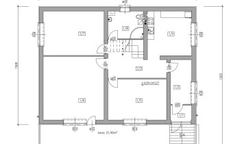
Powierzchnia parteru: 121 m²
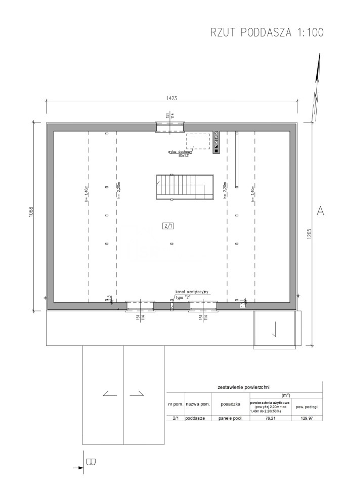
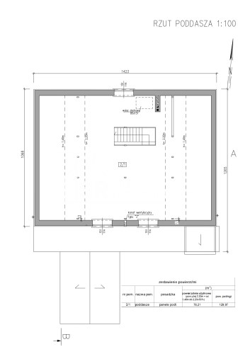
Powierzchnia poddasza: 77 m²
Technologia murowana
Ściany piwnic z bloczków betonowych, parter i poddasze z pustaków gipsowych K-35, docieplenie styropianem
Dach drewniany, pokryty blachodachówką, ocieplony wełną mineralną
Strop Teriva
Okna PCV
Schody zewnętrzne żelbetowe, wewnętrzne stalowe
W pokojach – parkiety, w kuchni i łazience – glazura i terakota
Ogrzewanie: piec na ekogroszek oraz kocioł gazowy dwufunkcyjny (systemy zamienne)
Woda, prąd, gaz – z sieci gminnej
Przydomowa oczyszczalnia ścieków
Dojazd: droga asfaltowa + 90 m droga gminna gruntowa
4 km do autostrady A1 (ok. 6 min)
Komunikacja miejska: 900 m
Sklep: 1,5 km
Szkoła i przedszkole: 2,5 km
Spokojne, zielone otoczenie – sąsiedztwo lasu




Uwaga: mogą wystąpić dodatkowe opłaty za założenie księgi wieczystej oraz ustanowienie hipoteki.